フォーシーズンタウン上東Ⅲ ③号地造成工事中です! *盛土法の説明もあるよ
掲載日 : 2025/11/24
こんにちは!
フォーシーズン株式会社の水嶋です!
フォーシーズンタウン上東Ⅲ(全3区画)ただいま絶賛造成中です!!

こちらのフォーシーズンタウン上東Ⅲですが、3区画の分譲地で、既に2区画ご成約済み、上東の人気がうかがえますね!
③号地は60坪以上、南東角地!!東側公道、南側公道(自動車通行不可)・水路、西側は水路・道という風に三方向開けており、平屋建築にも最適な土地となっています!下記ページよりお問い合わせください!
さて、今回は上東で直面した盛土法の解説を少しさせていただきます。
みなさん盛土法ってあまり聞き馴染みないですよね。
-------------------------------------------
宅地造成及び特定盛土等規制法(通称:盛土規制法)について
令和3年7月に静岡県熱海市で大雨に伴って盛土が崩落し、大規模な土石流災害が発生したことや、危険な盛土等に関する法律による規制が必ずしも十分でないエリアが存在していること等を踏まえ、令和4年5月27日付けで「宅地造成等規制法の一部を改正する法律」が公布されました。
また、令和5年5月26日に「宅地造成等規制法」が改正、「宅地造成及び特定盛土等規制法(以下「盛土規制法」という。)」が施行され、新たに宅地造成等工事規制区域及び特定盛土等規制区域を指定することとなりました。
規制区域について
盛土規制法に基づき、規制区域の指定に向けた基礎調査を実施し、検討を行った結果、市内全域を「宅地造成等工事規制区域」に指定します。なお、特定盛土等規制区域は指定しません。
指定日
令和7年4月1日
-------------------------------------------
このように倉敷市全域(岡山市も同様)が指定されています。
フォーシーズンタウン上東Ⅲは、この盛土法の許可を得て開発している団地になりますが、昨年までであればこの許可も不要だったんですね。分譲業者としては非常にやっかいな盛土法です…
こちらは造成前の写真ですが、既に造成されており、面積的にも許可不要の土地でした。

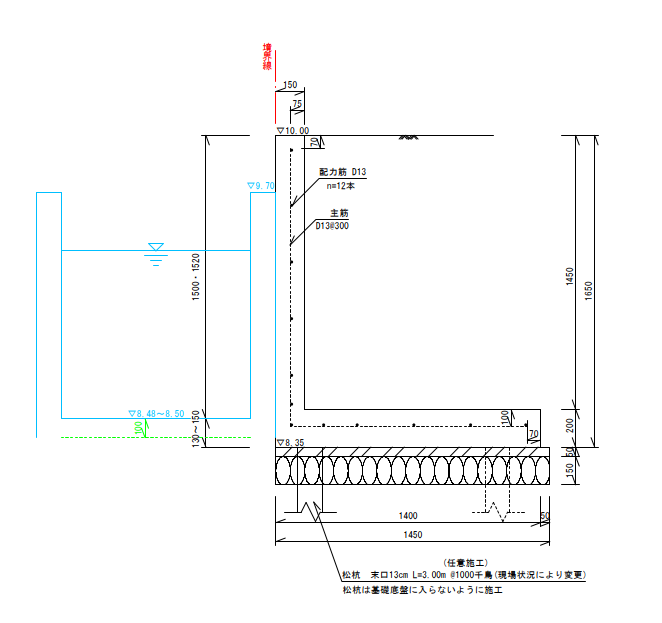
ではなぜこの土地で許可が必要になったかというと、この写真の左側に、水路がありまして、この水路の擁壁が15㎝未満の厚さで、且つ水路深さが1m以上あった為です。
水路の擁壁厚さが15㎝未満の場合は水路の擁壁に土圧をかけてはいけないとなっており、内側に土留めを作る必要があるんですね。
水路の深さが1m
↓
1m以上の擁壁を作る必要がある
↓
1m以上の掘削、土留め工事は宅地造成及び特定盛土等規制法の許可要件の該当する
このようなロジックから、許可を要したケースになります。
こちら擁壁の工事中の写真ですが、ゴツいですね~(‘_’)
実際この現場を見ると、これを不動産売買の取引後に個人の方が負担する、施工するとなれば本当に大ごとになるなと思います。

断面図

ちなみに今回盛土法の許可申請でかかった期間は約3ヵ月、事前協議から造成完了までいくと半年以上かかります。
6月 事前協議
↓
7月 買取の売買契約
↓
8月 造成図面作成
↓
9月 許可申請
↓
10月末 許可
↓
11月 工事開始
費用も期間も莫大になりますので、水路際の土地の売買、造成を要する土地を購入する場合は、内容にしっかり気を付けて購入することが必要になりますね!
フォーシーズン株式会社では、こういった内容を全てクリアにして、安心した宅地分譲を行っていますので、売却、購入など何でもご相談くださいませ!
ではまた次回お楽しみに!